CX-VCFM Cone Flow Meter
Summary
V-cone flowmeter is a new type of high-precision flowmeter that can accurately measure all kinds of Reynolds number. It can meet application condition of a variety of media that its operating principle should be the same as the principle of differential pressure of other types, both of which are based on conversation of energy theorem in sealed pipeline. V-cone flowmeter has a better performance for its unique design structure.
V-cone flowmeter hangs in the center of the pipeline a cone-shaped throttle piece, which impedes the flow of media, reshapes the flow curve, and immediately forms a meiobar in taper downstream pipeline. There is a pressure difference between the positive pressure in upstream pipeline and the throttled negative pressure in downstream pipeline. Extract the positive and negative pressure using extraction orifice with negative pressure orifice put in the upstream pipeline and the negative pressure orifice at the bottom of the cone. By measuring pressure difference, you can calculate the pipeline’s flow based on Bernoulli equation. The cone is in the pipeline center so as to optimize media flow curve. Thus this flowmeter enjoys a higher accuracy with lower requirements for upstream and downstream ascending pipe.
V-cone flowmeter can measure gas phase, mixed gas phase, liquidoid, mixed liquidoid, gas-liquid phase (quality ratio of moisture and liquidoid is ≤5%), powder, dirty liquid with high viscosity, high velocity of flow and suspending solid particles, liquid vibration, electromagnetic interference and other media values under various working condition (temperature and pressure). The fluid condition ranges from profound hypothermia to super-critical condition. The highest working temperature and pressure respectively reach 850°C and 42.0MPa, which can be higher with special material. The Reynolds numbers it can measure range from 500 million to 8000 or even lower. In addition, it produces full-scale pressure difference signals from lower than 0.1KPa to the highest scores KPa.
V-cone flowmeter with flange taps (VF), using solid cone closure fluid and flange taps on the wall, and coupled with remote differential pressure transmitter, can effectively prevent the pressure port being stopped. It is suitable for media containing solid particles of dust, liquid with high-viscosity and dirty media.
Principle of work
V-cone flowmeter is a differential press flowmeter. The application of flowmeter designed with the principle of differential pressure has a history of more than 100 years. The differential press flowmeter is based on conversation of energy theorem in sealed pipeline, in other words, for steady-going fluid, pipeline pressure is inversely proportional to the square root of the media flow velocity in pipeline: the pressure will decline with the increase of the flow velocity. When the media get close to the cone, the pressure is P1; when the media pass through the throttle, the speed will increase while the pressure will be reduced to P2. Shown in Figure 1, both P1 and P2 come to the rear differential pressure transmitter through the pressure port in V-cone flowmeter, and the differential pressure value will accordingly increase or reduce when the flow velocity changes.
When the flow velocity keeps the same, the differential pressure value will be larger with a bigger throttling area. βvalue= the throttling area of the cone/ the sectional area of the pipeline inner diameter (or the diameter ratio)
Figure 1 High and low pressure port
Calculating formula
ΔP=P1+P2
ΔP: the differential pressure produced by the cone; P1: pressure in the upstream cone; P2: pressure in the downstream cone
2. 
β: the throttling coefficient; D: the pipeline inner diameter; d: the cone outer diameter
The figuration of cone has not been decided until years of continuous experiment, eva luation, and improvement, enjoying the best appearance among this type of flowmeter. It can be used in different working conditions. We can comprehend the capacity of V-cone flowmeter by dint of pipeline flow velocity curve. If the medium passes through a pipeline without any block or interference, its flow velocity will be equably distributed. The flow velocity close to the pipeline wall is nearly zero, while the flow velocity in the center reaches its maximum. (See Figure 2) If we hang the cone in the center of pipeline, it will directly touch the fluid high-speed area, compelling fluid in this area to mix with fluid in low-speed area to homogenization the flow velocity, which makes the measurement of flow velocity more accurate.
In actual working condition, it is difficult to homogenization the flow velocity, because many factors will cause asymmetry of fluid distribution. Any changes on pipeline may influence the fluid, such as elbow, valve, diameter reducing, diameter increasing, pump, tee joint, etc. the V-cone flowmeter reshapes the flow velocity curve using the cone
(see Figure 3), and the fluid is almost equably distributed after the commutation, ensuring a comparatively high measuring precision in bad condition, which makes it possible to apply V-cone flowmeter in more fields.
Precision and repetitiveness

The positive pressure hole of V-cone flowmeter is set on the pipe wall in upstream cone, and the pressure measurement points are chosen in the isodromic area of frictionless fluid, which is in accordance with Bernoulli’s theorem and has a stable positive pressure signal. The negative pressure hole is in the central bottom of the cone, just right in a downstream area that has the lowest pressure. Due to the symmetric construction of the cone center which makes the flow field of the central bottom of the cone relatively static, there is only a small swirl with high frequency and low extent in negative pressure area after fluid throttle, making the fluctuation of negative pressure signal quite small, the output differential pressure signal stable. Meanwhile, the sensor accuracy excelling ±5% of the reading, the repetitiveness being ±0.1%, and the accuracy of trade measuring type reaching ±0.3%
Measuring range ratio and loss of pressure
The measuring range ratio of V-cone flowmeter under normal conditions is 10:1, which can even be 30:1 with proper parameter. Under the same βvalue, the permanent pressure loss of V-cone flowmeter is approximately 1/5~1/10 of pore plate (see Figure 5), substantially reducing energy consumption.
Figure 5 comparison of pressure loss of flowmeter
Pipeline type SO flange joint (VS)
Flange standard: ANSIB16.5/ HG20616 Connection form: SO Air proofing form: RF
Pressure range (CL/ MPa): 150/2.0
Flange standard: JB/ T82.1/ HG20593, 20594 Connection form: downward welding Air proofing surface form: convex table
Pressure range (MPa): 0.25, 0.6, 1.0, 1.6, 2.5
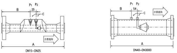
Outside view
cone flowmeter under normal conditions is 10:1, which can even be 30:1 with proper parameter. Under the same βvalue, the
permanent pressure loss of V-cone flowmeter is approximately 1/5~1/10 of pore plate (see Figure 5), substantially reducing energy
consumption.
Figure 5 comparison of pressure loss of flowmeter
Pipeline type SO flange joint (VS)
Flange standard: ANSIB16.5/ HG20616 Connection form: SO Air proofing form: RF
Pressure range (CL/ MPa): 150/2.0
Flange standard: JB/ T82.1/ HG20593, 20594 Connection form: downward welding Air proofing surface form: convex table
Pressure range (MPa): 0.25, 0.6, 1.0, 1.6, 2.5
Outside view
